


















Apartament 3 camere | 99,3 mp | H Pipera Lake
Voluntari
195.000€ + TVA
Camere
3
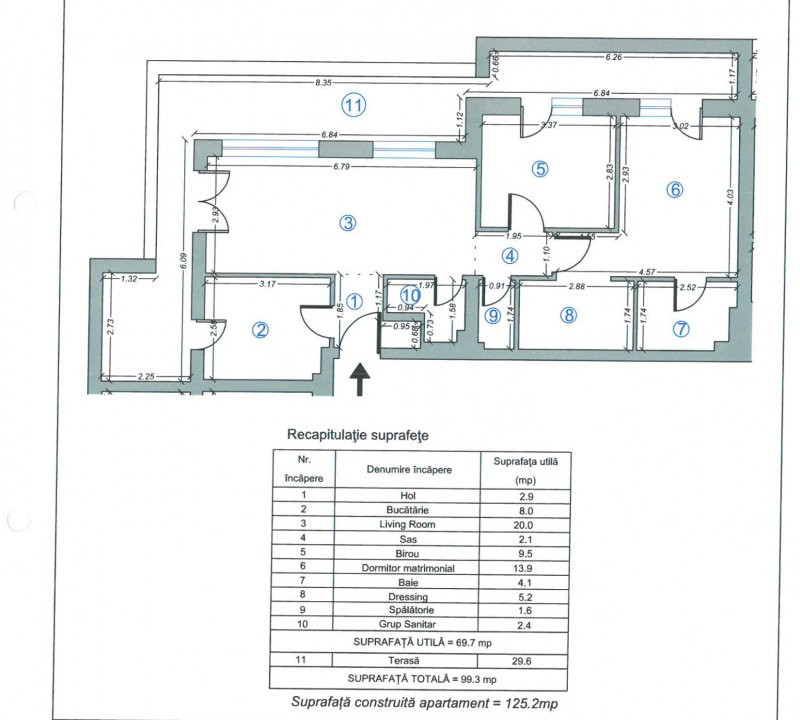
Suprafata utila
69.70 mp
Etaj
Etaj 7
Bai
2
Parcari
1
An constructie
2020
- ID:FX63728
- Nr. camere:3
- Nr. dormitoare:2
- S. utila:69.70 mp
- S. terase:29.60 mp
- Comp.:Semidecomandat
- Confort:1
- Etaj:Etaj 7
- Nr. bucatarii:1
- Nr. bai:2
- Nr. parcari:1
- An constructie:2020
- Structura:Beton
- Tip imobil:Bloc
- Regim inaltime:S+P+7
- Orientare:Nord-Est
Descriere
Vă prezint un apartament complet mobilat si utilat de 3 camere, situat in H Pipera Lake potrivit atat pentru o familie la inceput de drum, cat si pentru un investitor.
Apartamentul aflat la etajul 7/7, este orientat către Nord -Est oferindu-vă o priveliste panoramica si un echilibru perfect de lumina pe tot parcursul zilei.
Apartamentul semidecomandat are o suprafață utilă de 69.7 mp la care se adauga o terasa de 29,6 mp accesibila din toate camerele
*Locul de parcare se achizitioneaza separat la pretul de 15.000 euro
*la pret se adauga TVA 21%
Va astept cu drag la vizionare!
Apartamentul aflat la etajul 7/7, este orientat către Nord -Est oferindu-vă o priveliste panoramica si un echilibru perfect de lumina pe tot parcursul zilei.
Apartamentul semidecomandat are o suprafață utilă de 69.7 mp la care se adauga o terasa de 29,6 mp accesibila din toate camerele
*Locul de parcare se achizitioneaza separat la pretul de 15.000 euro
*la pret se adauga TVA 21%
Va astept cu drag la vizionare!
Specificatii
Curent
Apa
Canalizare
Gaz
Acces internet
Centrala proprie
Incalzire pardoseala
Calorifere
Aer conditionat
Bloc izolat termic
Vopsea lavabila
Parchet
Gresie
Ferestre PVC
Usa intrare Metal
Usa interior Lemn
Terasa
Dressing
Bucatarie Mobilata
Bucatarie Utilata
Complet mobilat
Interfon
Lift
Dragos Enachioaie
0771208924
Esti interesat de aceasta proprietate ?