






































Casa cu teren la pret de apartament in Giulesti-capatul tramvaiului 11
Bucuresti, Giulesti
134.500€
Camere
3
Suprafata utila
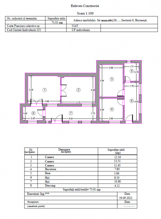
73.01 mp
Suprafata construita
73.01 mp
Bai
1
- ID:P166
- Nr. camere:3
- Nr. dormitoare:2
- S. utila:73.01 mp
- S. construita:73.01 mp
- S. teren:275.00 mp
- Nr. bucatarii:2
- Nr. bai:1
- Front stradal:18.65 m
- Nr. fronturi:1
- Structura rezistenta:Beton
- Orientare:Sud-Est
Descriere
COMISION 0% - Pentru cei care nu au un buget foarte mare, dar totuși vor sa se mute la casa ca sa aibă curtea lor, sa fie independenți, sa nu mai stea la apartament, acum au ocazia sa profite de aceasta oferta in cartierul Giulesti.
Este vorba de o casa cu un singur nivel, compusa din 2 corpuri de clădire, un corp unde sunt 2 camere si un hol cu bucatarie, iar al doilea corp este compus dintr-o camera, o bucatarie si o baie.
Aceasta casa are un beci spatios si bine construit, dar are si un pod mare unde puteti depozita tot ce va doriti.
Primul corp de clădire a fost construit in 1993, iar al doilea corp a fost construit in 2010 si a fost proiectat sa mai aiba un etaj, dar nu a mai fost construit, iar daca noul proprietar doreste sa mai edifice un etaj, structura casei permite acest lucru.
Terenul liber este de 200mp, aveti suficient spatiu pentru o terasa, dar mai ramane teren liber si pentru gradinarit sau spatiu verde.
Casa se afla intr-o zona numai de case, strada este destul de retrasa si linistita, deoarece pe acea strada circula doar riveranii. Casa este foarte aproape de capătul tramvaiului, iar de aici puteți ajunge rapid in Crângași sau spre podul Grant.
Daca iubiți si miscarea in aer liber, aveti acces rapid si către lacul Morii si promenada de pe lac.
In linkurile de mai jos aveti 2 tururi virtuale care va ofera posibilitate sa vedeti casa si sa va plimbati prin camere pentru a o descoperi mai bine decat in fotografii:
*** https://my.matterport.com/show/?m=sQUCyhimdKa
*** https://my.matterport.com/show/?m=moTFY16cayk
Eu va stau la dispozitie daca aveti alte intrebari sau daca este ceea ce cautati ma puteti contacta ca sa stabilim o vizionare.
Este vorba de o casa cu un singur nivel, compusa din 2 corpuri de clădire, un corp unde sunt 2 camere si un hol cu bucatarie, iar al doilea corp este compus dintr-o camera, o bucatarie si o baie.
Aceasta casa are un beci spatios si bine construit, dar are si un pod mare unde puteti depozita tot ce va doriti.
Primul corp de clădire a fost construit in 1993, iar al doilea corp a fost construit in 2010 si a fost proiectat sa mai aiba un etaj, dar nu a mai fost construit, iar daca noul proprietar doreste sa mai edifice un etaj, structura casei permite acest lucru.
Terenul liber este de 200mp, aveti suficient spatiu pentru o terasa, dar mai ramane teren liber si pentru gradinarit sau spatiu verde.
Casa se afla intr-o zona numai de case, strada este destul de retrasa si linistita, deoarece pe acea strada circula doar riveranii. Casa este foarte aproape de capătul tramvaiului, iar de aici puteți ajunge rapid in Crângași sau spre podul Grant.
Daca iubiți si miscarea in aer liber, aveti acces rapid si către lacul Morii si promenada de pe lac.
In linkurile de mai jos aveti 2 tururi virtuale care va ofera posibilitate sa vedeti casa si sa va plimbati prin camere pentru a o descoperi mai bine decat in fotografii:
*** https://my.matterport.com/show/?m=sQUCyhimdKa
*** https://my.matterport.com/show/?m=moTFY16cayk
Eu va stau la dispozitie daca aveti alte intrebari sau daca este ceea ce cautati ma puteti contacta ca sa stabilim o vizionare.
Specificatii
Curent
Apa
Canalizare
Gaz
CATV
Acces internet
Centrala proprie
Soba teracota
Calorifere
Izolatie Exterior
Vopsea lavabila
Faianta
Parchet
Gresie
Ferestre PVC
Usa intrare Metal
Usa interior Celulare
Pivnita
Bucatarie Mobilata
Apometre
Contor gaz
Complet mobilat
Gradina
Tur virtual
Dragos Enachioaie
0771208924
Esti interesat de aceasta proprietate ?