







De vanzare spatiu comercial nou - Peris, la strada principala
Peris
300.000€
Camere
1
Suprafata utila
280 mp
Suprafata construita
300 mp
Parcari
12
An constructie
2025
- ID:FX65742
- Nr. camere:1
- S. utila:280.00 mp
- S. construita:300.00 mp
- Front stradal:23.00 m
- Comp.:Open space
- Nr. bai:2
- Terase:1
- Nr. parcari:12
- An constructie:2025
- Structura rezistenta:Beton
- Regim inaltime:D+P+1
Descriere
Ideal pentru showroom, birouri, cabinet medical, spații comerciale sau activitati de servicii.
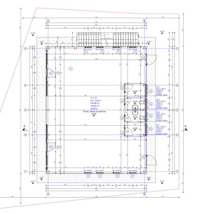
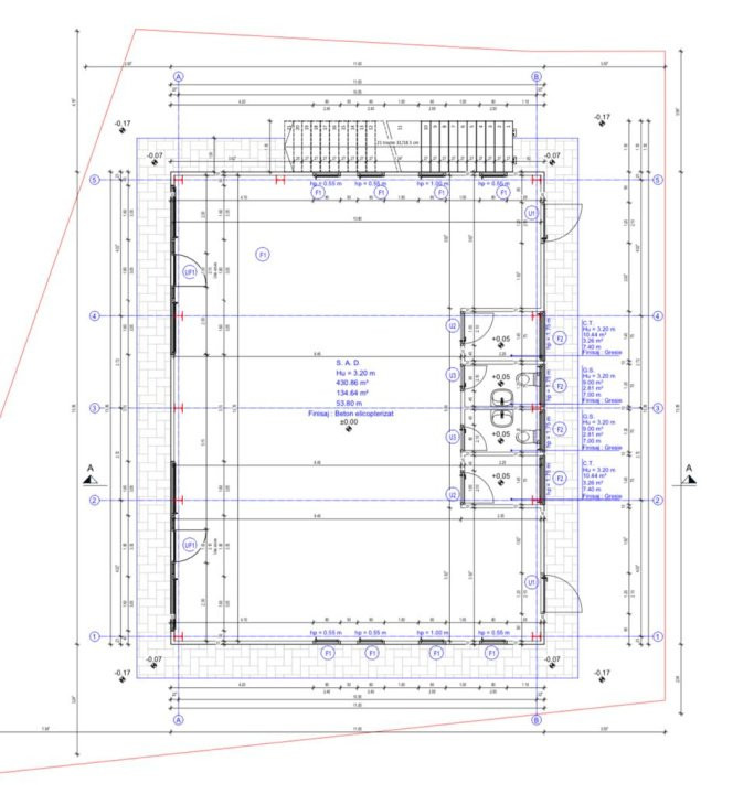
Va prezentam un spațiu comercial nou, finalizat în 2025, situat la strada Principala în Peris, intr-o zona cu vizibilitate excelenta și acces facil.
Proprietatea este compusă din parter și etaj (fiecare cu acces separat - etajul are scara exterioara), oferind flexibilitate totala în utilizare și compartimentare. Spațiile se pot și închiria separat.
- Suprafață totala: aproximativ 13m x 11m pe etaj
- Parcare: 12 locuri
- Incalzire: centrală proprie cu calorifere
- Hutil: 3.20m
- Fiecare spațiu are câte 2 uși.
Compartimentare:
- Ambele spații sunt open space și au câte 2 grupuri sanitare și 2 spații de depozitare fiecare.
Va invitam la o vizionare!
Va prezentam un spațiu comercial nou, finalizat în 2025, situat la strada Principala în Peris, intr-o zona cu vizibilitate excelenta și acces facil.
Proprietatea este compusă din parter și etaj (fiecare cu acces separat - etajul are scara exterioara), oferind flexibilitate totala în utilizare și compartimentare. Spațiile se pot și închiria separat.
- Suprafață totala: aproximativ 13m x 11m pe etaj
- Parcare: 12 locuri
- Incalzire: centrală proprie cu calorifere
- Hutil: 3.20m
- Fiecare spațiu are câte 2 uși.
Compartimentare:
- Ambele spații sunt open space și au câte 2 grupuri sanitare și 2 spații de depozitare fiecare.
Va invitam la o vizionare!
Specificatii
Curent
Apa
Canalizare
Gaz
Curent trifazic
Fibra optica
Utilitati in zona
Centrala proprie
Calorifere
Dragos Enachioaie
0771208924
Esti interesat de aceasta proprietate ?