




















SPATIU COMERCIAL PE SPLAIUL UNIRII, ASMITA GARDENS!
Bucuresti, Mihai Bravu
Pret la cerere
Camere
2
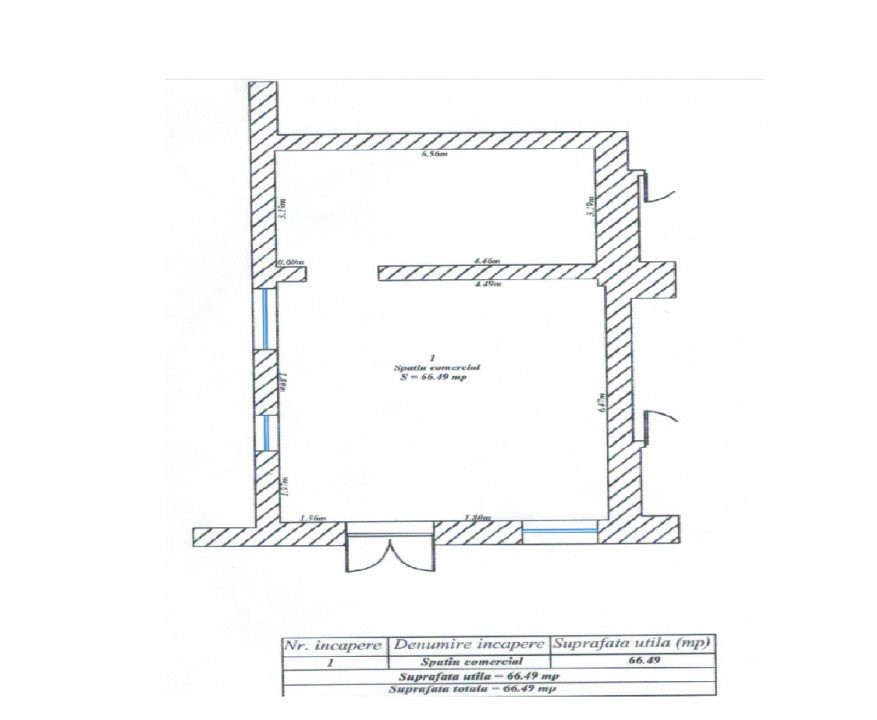
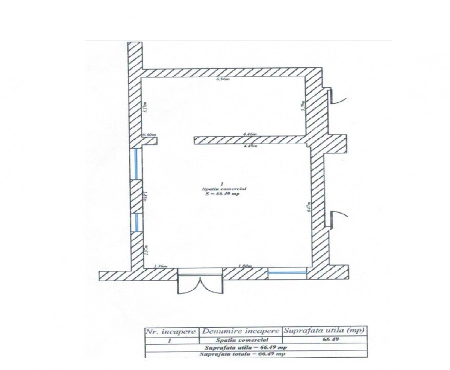
Suprafata utila
66.49 mp
Suprafata construita
66.49 mp
An constructie
2009
- ID:FX50573
- Nr. camere:2
- S. utila:66.49 mp
- S. construita:66.49 mp
- Front stradal:6.56 m
- Comp.:Compartimentat
- Nr. bai:2
- An constructie:2009
- Structura rezistenta:Beton
- Regim inaltime:S+P+17
Descriere
Tip tranzactie: Vanzare, Tip proprietate: Spatiu Comercial, Zona: Splaiul Unirii Nr. 168, Bloc T1 Asmita Gardens, Pret vanzare: 249.000,-EUR, Pozitionare: parter, Suprafata utila: 66,49 mp, Inaltime: 4m, Numar grupuri sanitare: 2, Acces stradal, Boxa pentru depozitare: 13,74mp(se vinde separat cu 15.000,-eur, nu este inclusa in acest pret), Anul constructiei: 2009
Spatiu comercial stradal situat la parterul complexului de blocuri Asmita Gardens, in suprafata de 66,49 mp. Este un spatiu luminos, impartit in doua incaperi, partea din fata are o suprafata patrata de 46 mp, iar partea din spate are o suprafata dreptunghiulara de 20,50 mp. Inaltimea intregului spatiu este de 4 m, iar accesul in spatiu se face exclusiv prin usa de acces din Splaiul Unirii.
In partea din spate unde se afla si cele doua grupuri sanitare, datorita inaltimii de 4 m pe care o are spatiului, se pot organiza spatii de depozitare deasupra structurii celor doua grupuri sanitare. Utilitatile spatiului sunt independente, exista contorizare separata la electricitatea de 220v, la fel si pentru contorizarea separata a consumului incalzirii spatiului, ce se face prin sistemul de incalzire centralizata a complexului Asmita Gardens. Pentru o putere mai mare de electricitate de 380v, exista optiunea ca spatiul sa fie conectat si la o tensiune mai mare de 220v.
Separat de acest spatiu comercial exista si o boxa pentru depozitare in suprafata de 13,74 mp ce se vinde cu pretul de 15.000,-eur, care nu este inclusa in pretul de vanzare de 249.000,-eur al spatiului. Boxa se afla in interiorul blocului, la mica distanta de spatiu, in zona destinata boxelor pentru intreg bocul T1.
Va asteptam la vizionare!
Spatiu comercial stradal situat la parterul complexului de blocuri Asmita Gardens, in suprafata de 66,49 mp. Este un spatiu luminos, impartit in doua incaperi, partea din fata are o suprafata patrata de 46 mp, iar partea din spate are o suprafata dreptunghiulara de 20,50 mp. Inaltimea intregului spatiu este de 4 m, iar accesul in spatiu se face exclusiv prin usa de acces din Splaiul Unirii.
In partea din spate unde se afla si cele doua grupuri sanitare, datorita inaltimii de 4 m pe care o are spatiului, se pot organiza spatii de depozitare deasupra structurii celor doua grupuri sanitare. Utilitatile spatiului sunt independente, exista contorizare separata la electricitatea de 220v, la fel si pentru contorizarea separata a consumului incalzirii spatiului, ce se face prin sistemul de incalzire centralizata a complexului Asmita Gardens. Pentru o putere mai mare de electricitate de 380v, exista optiunea ca spatiul sa fie conectat si la o tensiune mai mare de 220v.
Separat de acest spatiu comercial exista si o boxa pentru depozitare in suprafata de 13,74 mp ce se vinde cu pretul de 15.000,-eur, care nu este inclusa in pretul de vanzare de 249.000,-eur al spatiului. Boxa se afla in interiorul blocului, la mica distanta de spatiu, in zona destinata boxelor pentru intreg bocul T1.
Va asteptam la vizionare!
Specificatii
Curent
Apa
Canalizare
Acces internet
Centrala imobil
Calorifere
Aer conditionat
Izolatie Exterior
Vopsea lavabila
Faianta
Gresie
Ferestre Termopan
Aplice
Lumina naturala
Apometre
Contor caldura
Nemobilat
Control electric individual
Administrare
Curatenie
Paza
Supraveghere video
Ingrijire spatii verzi
Curatenie parcare
Dragos Enachioaie
0771208924
Esti interesat de aceasta proprietate ?