











Refugiu la marginea padurii — 2822 mp de liniste in Cocani.
Cocani, Exterior Nord
20€/mp
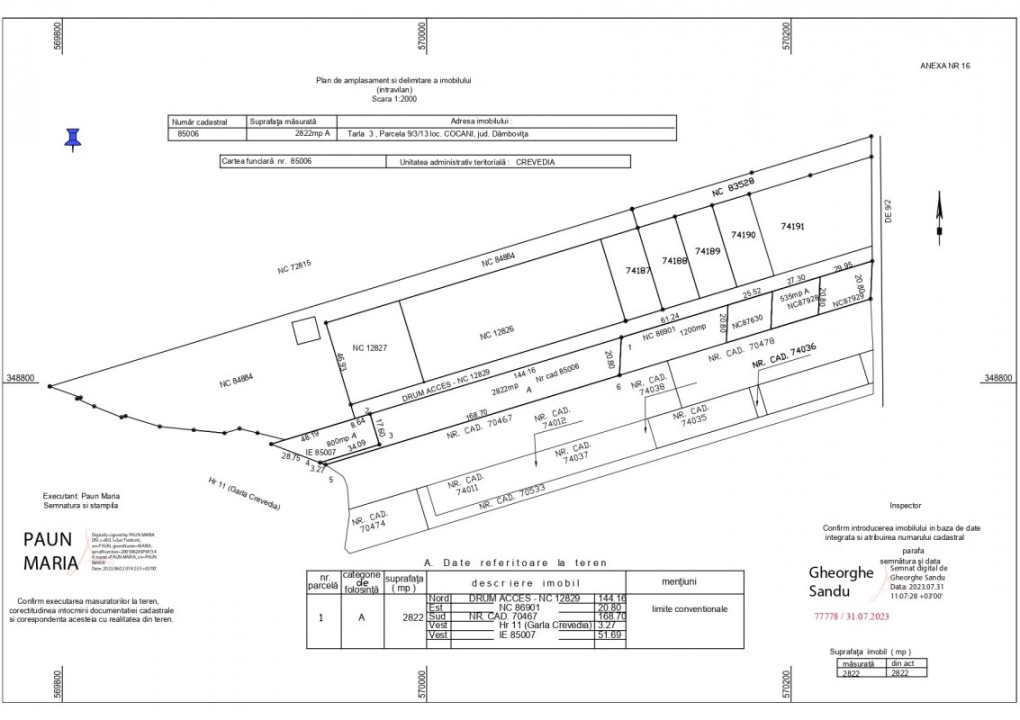
- ID:FX64185
- S. teren:2822.00 mp
- Front stradal:144.00 m
- Nr. fronturi:1
- Clasificare teren:Intravilan
- Regim inaltime:S+P+2+M
Descriere
Te trezesti dimineata cu aerul rece al padurii care iti mangaie fata, iar soarele se strecoara printre coroanele copacilor ca o promisiune. Acest teren de 2822 mp, situat in satul Cocani, este o foaie alba pentru visurile tale — fie ca vrei o casa de weekend, un proiect de familie sau un refugiu permanent. Linistea locului si proximitatea directa la padure iti ofera intimitate, aer curat si acel sentiment rar de tihna pe care il cauti in fiecare zi.
Urbanismul permite constructia unei case S+P+2+M, deschizand posibilitati generoase pentru o locuinta spatioasa, cu zone dedicate pentru familie, hobby-uri si o terasa sau mansarda cu priveliste catre coroanele copacilor.
In vecinatate se afla Academia Titi Aur, un plus important pentru cei interesati de pregatire auto, cursuri de conducere defensiva sau evenimente auto — un element care adauga dinamica si utilitate zonei.
Pamantul pare sa pastreze povestile locului: potential pentru gradina, colturi cu flori salbatice, o mica livada sau un foisor unde sa sorbi o cafea si sa asculti pasarile. Noaptea, cerul devine cortina ta personala de stele — un cadru perfect pentru clipe sincere, pentru reuniuni calde sau pentru tihna pe care doar cineva apropiat de natura o poate recunoaste.
•✅ Suprafata: 2822 mp
•✅ Regim: intravilan
•✅ Localizare: Cocani, Judetul Dambovita
•✅ Urbanism: permite constructia unei case S+P+2+M
•✅ Vecinatate: direct langa padure; in apropiere Academia Titi Aur — util si atragator.
💡Potrivit pentru:
• Resedinta permanenta, casa de vacanta, proiect de agroturism sau investitie pe termen lung.
Vino sa simti locul — terenul ideal pentru casa visata, aprobare urbanistica pentru S+P+2+M. Contacteaza-ma pentru vizionare.
Urbanismul permite constructia unei case S+P+2+M, deschizand posibilitati generoase pentru o locuinta spatioasa, cu zone dedicate pentru familie, hobby-uri si o terasa sau mansarda cu priveliste catre coroanele copacilor.
In vecinatate se afla Academia Titi Aur, un plus important pentru cei interesati de pregatire auto, cursuri de conducere defensiva sau evenimente auto — un element care adauga dinamica si utilitate zonei.
Pamantul pare sa pastreze povestile locului: potential pentru gradina, colturi cu flori salbatice, o mica livada sau un foisor unde sa sorbi o cafea si sa asculti pasarile. Noaptea, cerul devine cortina ta personala de stele — un cadru perfect pentru clipe sincere, pentru reuniuni calde sau pentru tihna pe care doar cineva apropiat de natura o poate recunoaste.
•✅ Suprafata: 2822 mp
•✅ Regim: intravilan
•✅ Localizare: Cocani, Judetul Dambovita
•✅ Urbanism: permite constructia unei case S+P+2+M
•✅ Vecinatate: direct langa padure; in apropiere Academia Titi Aur — util si atragator.
💡Potrivit pentru:
• Resedinta permanenta, casa de vacanta, proiect de agroturism sau investitie pe termen lung.
Vino sa simti locul — terenul ideal pentru casa visata, aprobare urbanistica pentru S+P+2+M. Contacteaza-ma pentru vizionare.
Specificatii
Curent
Apa
Canalizare
Gaz
Fibra optica
Utilitati in zona
Gabi Arteni
+40766521451
Esti interesat de aceasta proprietate ?