

















Oportunitate - vanzare 5 LOTURI CASE in centrul Stefanestii de Jos
Stefanestii de Jos
                 30.000€
            
        - ID:P174
- S. teren:255.00 mp
- Front stradal:33.00 m
- Nr. fronturi:2
- Clasificare teren:Intravilan
- Regim inaltime:P+M
Descriere
                OPORTUNITATE DE INVESTIȚIE – 5 LOTURI LA CEL MAI BUN PREȚ DIN ȘTEFĂNEȘTII DE JOS, CU TOATE UTILITĂȚILE!
Dacă ești în căutarea unei oferte excelente, rar întâlnită pe piață, ai găsit exact ceea ce îți trebuie, este vorba de 5 loturi de 250mp, situat în cea mai bună zonă din Ștefăneștii de Jos.
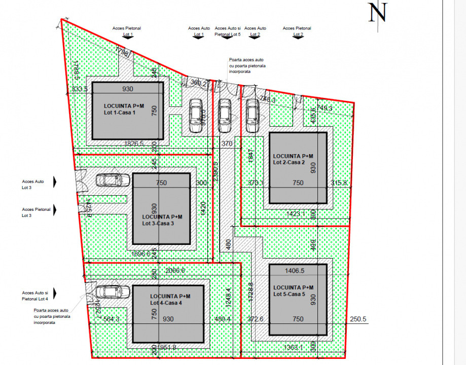
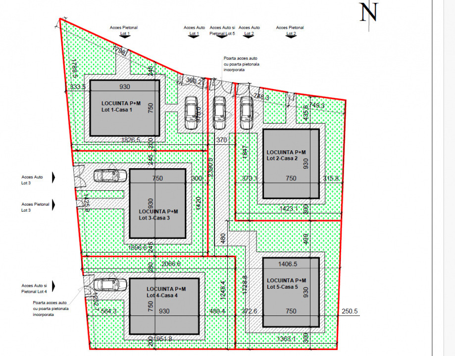
Este vorba de un total de 5 loturi, dintre care 4 sunt in suprafata de 250mp iar un altul are 322mp. Terenurile sunt chiar în centrul localității, la câțiva pași de primărie, cu dublă deschidere la străzile Teiului și Comarnic. Toate utilitățile sunt disponibile chiar lângă teren: apă, canalizare, gaze și energie electrică.
AVANTAJE LOTURI:
***EXISTA PROIECTELE CASELOR, SUNT OBTINUTE AUTORIZATII DE CONSTRUIRE, DEVIZ DE MATERIALE, TOATE UTILITATIILE LA TEREN***
PRET 120EURO/MP
Deschidere mare de 12-14ml
Zona centrală, cu acces rapid către București și autostradă
Preț excelent raportat la locație și potențial
Pe acest teren a fost conceput un proiect de lotizare și există autorizație de construire pentru 5 case individuale, precum și deviz de materiale pentru întreg proiectul — ideal pentru dezvoltatori sau investitori interesați de un mini-ansamblu rezidențial.
Se pot vinde separat sau toate, depinde de dorintele cumparatorilor, daca doriti puteti cumpara 2 loturi pentru a construi 2 case sau chiar 3.
Comuna Ștefăneștii de Jos se află într-o continuă dezvoltare, iar prețurile terenurilor sunt în creștere, fiind o investiție sigură și profitabilă atât pe termen scurt, cât și pe termen lung.
Nu ezita să mă contactezi pentru detalii suplimentare și programarea unei vizionări!
        Dacă ești în căutarea unei oferte excelente, rar întâlnită pe piață, ai găsit exact ceea ce îți trebuie, este vorba de 5 loturi de 250mp, situat în cea mai bună zonă din Ștefăneștii de Jos.
Este vorba de un total de 5 loturi, dintre care 4 sunt in suprafata de 250mp iar un altul are 322mp. Terenurile sunt chiar în centrul localității, la câțiva pași de primărie, cu dublă deschidere la străzile Teiului și Comarnic. Toate utilitățile sunt disponibile chiar lângă teren: apă, canalizare, gaze și energie electrică.
AVANTAJE LOTURI:
***EXISTA PROIECTELE CASELOR, SUNT OBTINUTE AUTORIZATII DE CONSTRUIRE, DEVIZ DE MATERIALE, TOATE UTILITATIILE LA TEREN***
PRET 120EURO/MP
Deschidere mare de 12-14ml
Zona centrală, cu acces rapid către București și autostradă
Preț excelent raportat la locație și potențial
Pe acest teren a fost conceput un proiect de lotizare și există autorizație de construire pentru 5 case individuale, precum și deviz de materiale pentru întreg proiectul — ideal pentru dezvoltatori sau investitori interesați de un mini-ansamblu rezidențial.
Se pot vinde separat sau toate, depinde de dorintele cumparatorilor, daca doriti puteti cumpara 2 loturi pentru a construi 2 case sau chiar 3.
Comuna Ștefăneștii de Jos se află într-o continuă dezvoltare, iar prețurile terenurilor sunt în creștere, fiind o investiție sigură și profitabilă atât pe termen scurt, cât și pe termen lung.
Nu ezita să mă contactezi pentru detalii suplimentare și programarea unei vizionări!
Specificatii
                                            
                                                 
                                                Curent
                                            
                                
                                                            
                                            
                                                 
                                                Apa
                                            
                                
                                                            
                                            
                                                 
                                                Canalizare
                                            
                                
                                                            
                                            
                                                 
                                                Gaz
                                            
                                
                                                            
                                            
                                                 
                                                Acces internet
                                            
                                
                                                            
                                            
                                                 
                                                Utilitati in zona
                                            
                                
                                                                                        Video
Dragos Enachioaie
                
                0771208924
                
                
            
    Esti interesat de aceasta proprietate ?
    
                         
             
                 
                 
                 
                 
                 
                 
                 
                 
                 
                 
                 
                 
                 
                 
                 
                 
                 
                